Moderno apartamento de 3 dormitorios en La Galera, Altea
España · Alicante · Altea · La Galera
€2,230,000
Precio/m²: €8,7803
Dormitorios
2
Baños
254 m²
Superficie construida
Sobre esta propiedad
Características básicas
Características y equipamiento
Características
Equipamiento
Urbanización
Ubicación y entorno
Vistas
Otro
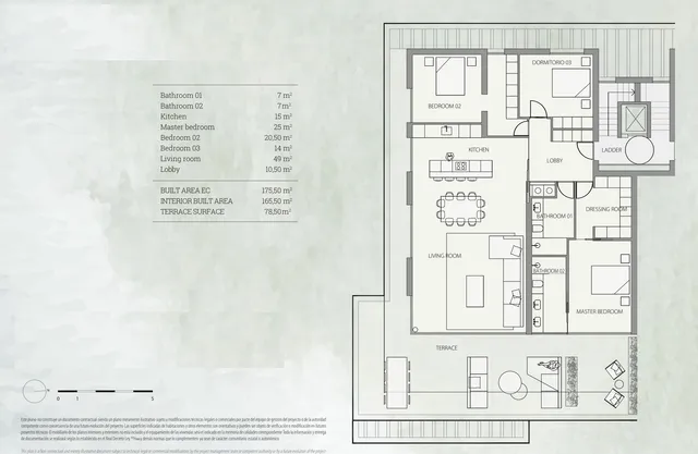
Planos

Calculadora de hipoteca
Property Price
2.230.000 €
Down Payment
30% — 669.000 €
Interest Rate
3.5%
Loan Term
25 years
Cuota mensual estimada
7815 €
/month
Cálculo orientativo. No incluye gastos, seguros ni comisiones.















