Nouvelle villa moderne exclusive à vendre dans les collines emblématiques d'Altea
Espagne · Alicante · Altea · Altea Hills
€1,999,000
Prix/m²: €4,6494
Chambres
3
Salles de bain
430 m²
Surface construite
970 m²
Terrain
À propos de ce bien
Caractéristiques de base
Équipements et prestations
Caractéristiques
Équipement
Emplacement et environs
Vues
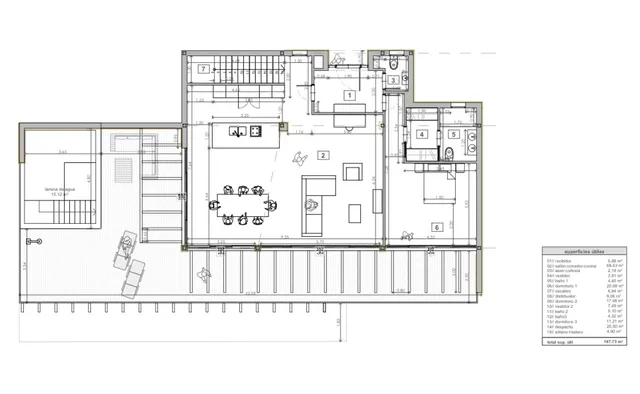
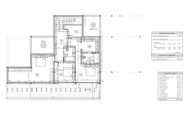
Plans


Simulateur de prêt
Property Price
1.999.000 €
Down Payment
30% — 599.700 €
Interest Rate
3.5%
Loan Term
25 years
Mensualité estimée
7005 €
/month
Calcul indicatif. Hors frais, assurance et commissions.























