Superbe penthouse à Marina Botafoc-Talamanca avec projet de rénovation
Espagne · Îles Baléares · Ibiza
€3,050,000
Prix/m²: €12,2003
Chambres
3
Salles de bain
250 m²
Surface construite
À propos de ce bien
Caractéristiques de base
Équipements et prestations
Caractéristiques
Équipement
Urbanisation
Emplacement et environs
Vues
Autre
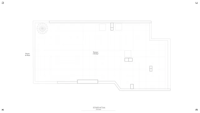
Plans




Zones proches
Simulateur de prêt
Property Price
3.050.000 €
Down Payment
30% — 915.000 €
Interest Rate
3.5%
Loan Term
25 years
Mensualité estimée
10.688 €
/month
Calcul indicatif. Hors frais, assurance et commissions.











































