Вилла с полным уединением и панорамным видом в Бениссе
Испания · Аликанте · Бенисса
€2,550,000
Цена/м²: €7,1035
Спальни
6
Ванные
359 m²
Площадь застройки
25,208 m²
Участок
О объекте
Основные характеристики
Особенности и удобства
Характеристики
Оборудование
Виды
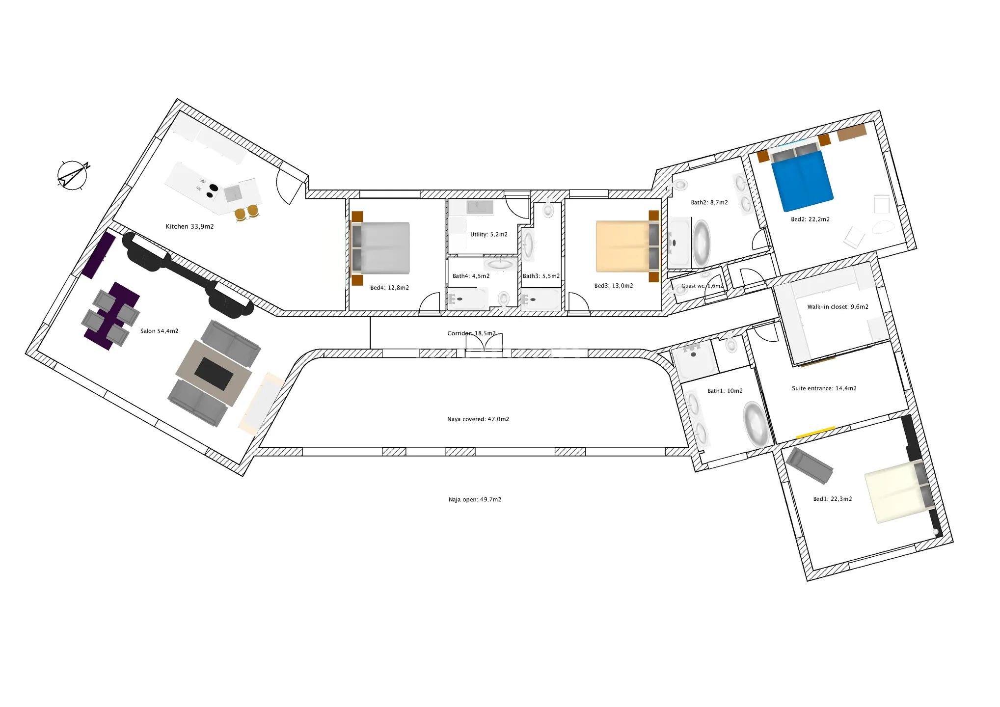
Планировки

Видео
Фантастическая вилла с полной приватностью и панорамными видами в Бениссе - Luxinmo
Ближайшие районы
Калькулятор ипотеки
Property Price
2.550.000 €
Down Payment
30% — 765.000 €
Interest Rate
3.5%
Loan Term
25 years
Примерный платёж в месяц
8936 €
/month
Ориентировочный расчёт. Без учёта комиссий, страховки.
















































